最近忙装修的事,各种乱七八糟真是脑壳痛。目前进度是已经给物业报建,目测装修队下周进场。布局已定,具体设计图还没定稿。
老婆把控全屋设计风格,我负责材料、水电、家电这些,网络这些事情当然都靠我了。
当前具体方案还没定,水电定位,还得跟设计师沟通,得好好准备下。
这篇帖子非定案,希望各位有经验的朋友能给点提醒和建议。
导航
这篇博客我也发在了V2EX和推特,有不少网友给出了很多建设性的意见和评论,也推荐大家去上面可以看看。
参考资料
在设计自家的网络相关之前,也看了不少资料,主要来源是张大妈、知乎、YouTube 和 B 站。关键字「装修 万兆 光纤 组网」。
主要看得比较多的是光纤组网这块,其他的软路由、爱国 balabala 啥的都已经折腾好了,就不用怎么看了。
- 对于数码控,在装修方面有哪些好的设计?
- 家庭万兆方案性价比之选,10G 网速不是梦!战在当下,布局未来!
- [视频] 司波图:万兆光纤布网实战攻略,让光纤铺满你家!
- [视频] 全屋万兆光纤预埋线管怎么选?弱电线管尺寸选购攻略
前置条件
- 毛坯房:自由度高,希望尽量能在装修阶段,尽量把网络和布线这块尽量考虑全,省得以后麻烦。
- 预算有限,没有找独立设计师,装修公司的设计师对网络、硬件这方面的了解怕没我多。
- 家里我唯一能动的房间就是工作室(卧室改的)。
- 客餐厅都吊顶了,好像能隐藏一些设备在吊顶里,这个我要再去问问设计师。
需求
- 5G 信号全屋无缝漫游:
这个应该是废话了 - 机柜或者独立设备空间:设备较多,路由器、NAS 、硬路由、交换机、UPS,比较倾向于上机柜(毕竟搞 IT)
- 万兆有线内网:六类线就支持,这个比较容易
- 光纤万兆:鉴于电口万兆设备昂贵,所有网线穿管时均同时拉条光纤。
- 智能家居:鉴于预算和当前智能家居生态,仅考虑门锁、灯光控制、电动窗帘这几块接入。
布局图
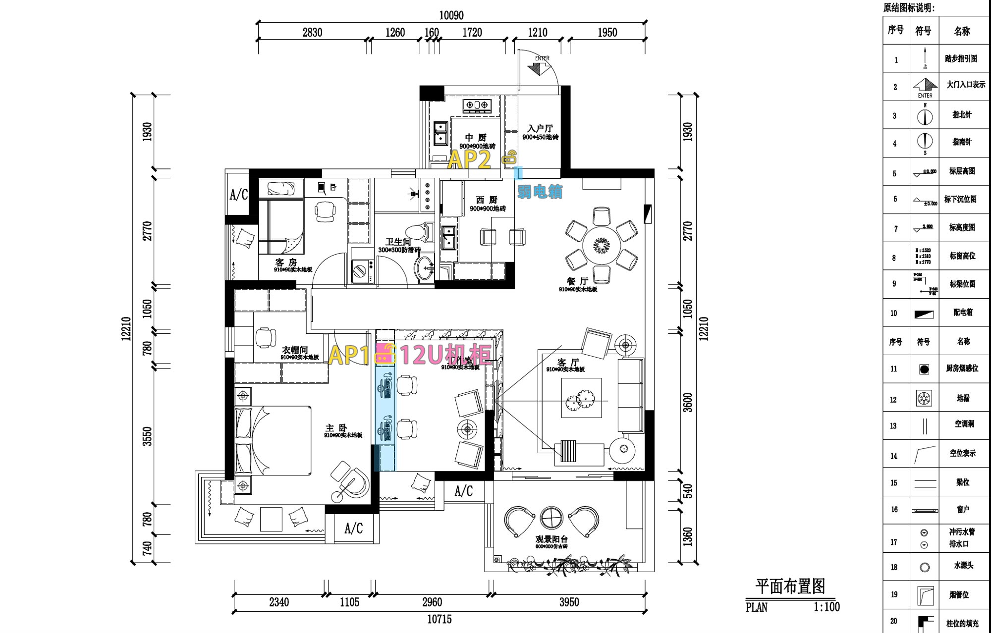
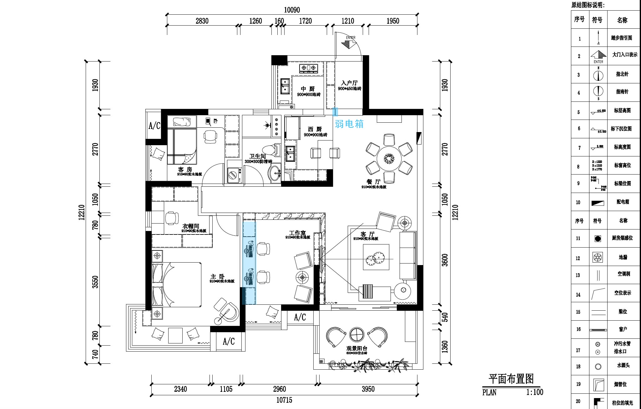
这是当前的房间布局图,原来是三房两厅两卫,原弱电箱在客餐厅入口。厨房墙打通,做成开放式吧台,一间卧室的墙打掉,用玻璃隔断,做成半开放工作间。
拓扑图 && 设备清单
整体布线 && 面板
- 全部网线采用六类非屏蔽线
- PVC 线管为 20mm,每根管分别塞 2 条六类网线 + 2 条光缆(这个很细,应该不太影响)。
- 客厅电视位预留 2 个网口+1 光口
- 主次卧出两个网口(光口暂时用不上)
- 工作室房间出 2 网口+1 光口
- 开关 86 盒留零线,方便接智能开关面板。
由于家庭面积不大,在 WIFI 方面决定采用 MESH 有线回程的方案,刚好已经有一个小米的 AX3600,再加一个也不贵,省点钱。
机柜设备:
- 网件 6300V2:用了很多年了,目前就是拿来拨号,到时候酌情升级或者弃用。(如果交给软路由拨号就没他的事了)
- 小米路由 AX3600:当 AP
- 小米路由 AX3600 或 AX1800 (待购):有线 MESH 当 AP
- 万兆交换机:威联通( QNAP ) QSW-308-1C 8 口千兆+3 口万兆:千兆网口+万兆 SFP+光纤端口+万兆电口(支持 1G 、2.5G 、5G 、10G 速率)(待购)
- 软路由(当前是群晖 DS216 虚拟机旁路由形式实现 )
- APC UPS (待购)
- 三拓 机柜 12U 高 500 宽 550 深 450 9U (待购)
方案 A
- 弱电箱改位,玄关柜当设备柜。
- 玄关柜里放一个主 AP
- 工作室网口接一个副 AP,可以做 MESH 有线回程
由于原来的厨房改开放式厨房,墙要打掉。这是我的第一个方案,这堵墙打掉后,弱电箱肯定是就近改位,入门玄关会起一排柜子,刚好可以在靠近原弱电箱位置,留一个柜子空间,专门放路由器、交换机这些设备。
由于回路设计中,冰箱和弱电箱,单独设计了一个回路(不被家庭其他回路影响),这种方案,冰箱与弱电箱回路近,走电也相对容易。
由于玄关柜子的深度有限(只有 350 ),没办法放标准化的机柜,且浪费掉鞋柜空间,另外担心散热问题。我们家鞋子还挺多的,肯定还是希望鞋柜空间大点好。
方案 B
- 移除原来的弱电箱(可以不用买那个大的弱电箱了),原光纤重接直连工作室机柜
- 工作室放一个主 AP
- 副 AP 可以放在原先的弱电箱里面(感觉有点怪)
方案 B 是,基本弃用原来的弱电箱,直接把原来的弱电箱功能,完全转移到工作室的机柜。这样有一个好处就是,就是所有的设备,都能放到一个工作室的机柜中,方便维护,工作 PC 与 NAS 之间,就不用走墙里的光纤了,万兆直连即可。
坏处也有,就是原来的入户光纤,要重新连一下,另外由于整个设备到了机房,也没有了单独的电回路,万一家里其他设备断电,可能会影响家里的网络这些。
智能家居
有关这一块,算是比较大坑,目前大概率会入米家生态。
- 门锁:米家生态链产品等活动了
- 智能猫眼:价格不贵
- 电动窗帘:房子所有窗帘盒的地方都预留电源,电轨暂定杜亚
- 智能开关:暂定把某些灯光控制开关换成智能面板,再接入人体传感器,来实现晚上起床开灯之类的操作。
- 空调:目前是客厅装风管机,有关风管机,没有找到太好的接入智能家居的方案(要换面板,很贵),风管机又不好直接接 16A 的插座,房间内的空调还没定,看型号有没有智能控制相关吧。
问题
现在这套方案,基本还是基于自己看过网上的资料后,初步设计的方案。感觉还是有点坑。比如说信号强度就没怎么考虑。
目前我还是比较担心的有几点:
- 光纤拉完线后,不知道如何测试,我现在就一台 MacBook,不知道有没有什么当场测试的方便工具。
- 目前设计的两个 AP 位置信号,不知道受墙体影响有都多大( AX3600 亲测过一堵墙效果还好)。
第一次装修,也算是各种学习各种坑吧,整理完这个帖子,倒也又清晰了点思路。
